STARTSEITE
UNTERNEHMEN
LEISTUNGEN
PROJEKTE
AKTUELLES
KONTAKT
 

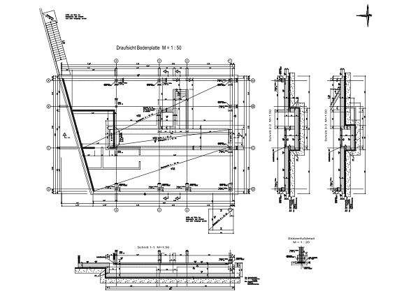
Projektdaten

Auftraggeber:
Stadt Nürnberg Hochbauamt
Kinderhort Welserstraße

Projektinformationen

Unsere Leistungen:
    
Kinderhort Welserstraße