STARTSEITE
UNTERNEHMEN
LEISTUNGEN
PROJEKTE
AKTUELLES
KONTAKT
 

Projektdaten

Bauherr:
Stadt Nürnberg, U-Bahnamt
Auftraggeber:
ARGE U3 Nordwest, Hochtief AG und
BK Infrastruktur (Max Bögl)
Baujahr:
2008
Rohbausumme:
ca. 40.000.000 €
Unsere Leistungen:
- Tragwerksplanung/Statik
- Ausführungsplanung
  in Ingenieurgemeinschaft
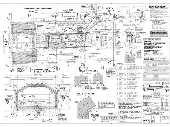
Neubau U3 Nordwest: U-Bahnhof Kaulbachplatz

Projektinformationen

Neubau der U-Bahnlinie U3 in Nürnberg. Teilabschnittsbearbeitung für den U-Bahnhof "Kaulbachplatz".
Tragwerksplanung (Statik) und Ausführungsplanung (Schal- und Bewehrungspläne)
      

Neubau U3 Nordwest: U-Bahnhof Kaulbachplatz