STARTSEITE
UNTERNEHMEN
LEISTUNGEN
PROJEKTE
AKTUELLES
KONTAKT
 

Projektdaten

Bauherr:
AQUA OPTA
ein Unternehmen der N-ERGIE AG
Neubau einer Lager- und Gerätehalle in Ranna

Projektinformationen

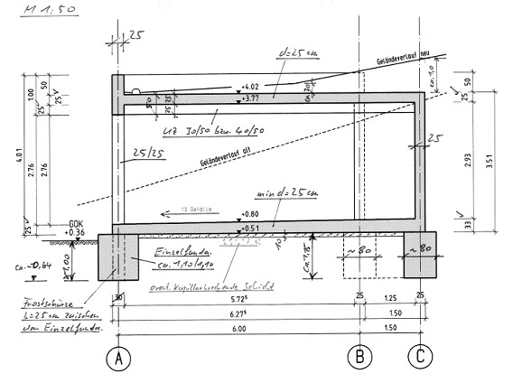
Die Halle liegt in Hanglage und wurde als Ortbetonkonstruktion nach DIN 1045-1 (07/2001) ausgeführt.

Unser erstes Projekt, das vollständig nach der "neuen" Norm bearbeitet wurde.
  
Neubau einer Lager- und Gerätehalle in Ranna