STARTSEITE
UNTERNEHMEN
LEISTUNGEN
PROJEKTE
AKTUELLES
KONTAKT
 

Projektdaten

Auftraggeber:
ASN Abfallwirtschaftsbetrieb der Stadt Nürnberg
Bausumme:
rd. 1,5 Mio Gesamtk.
rd. 200.000 € für Hochbau
Unsere Leistungen:
- Obkjekt- und Tragwerksplanung
- Vorentwurfs-, Entwurfsplanung
- Genehmigungsplanung
- Ausführungsplanung
- Vorbereiten der Vergabe
- Mitwirkung bei der Vergabe
- Objektüberwachung
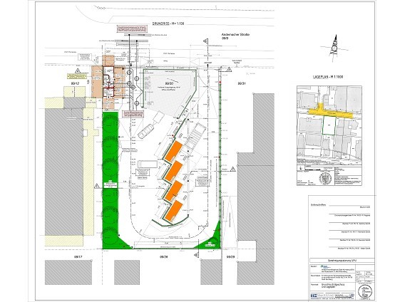
Errichtung einer Gartenabfallsammelstelle

Projektinformationen

Bei diesem Projekt bilden wir zusammen mit einem Partnerbüro eine Ingenieurgemeinschaft.
Unser Part der Bearbeitung beinhaltet den Fachbereich Hochbau.

Kurzbeschreibung:
Planung eines Aufenthaltsgebäudes für Aufsichtspersonen in Modulbauweise, diverse Winkelstützwände in Massivbauweise sowie eine Geländesprungsicherung in Form einer dauerhaften Bohrträgerwand an der grundstücksgrenze
   
Errichtung einer Gartenabfallsammelstelle